logo
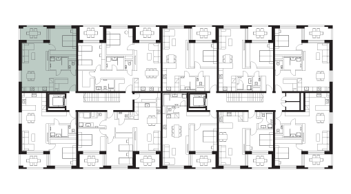
Pivničná kobka 1.61 m²
Chodba 8.54 m²
Spálňa 14.98 m²
Obývacia izba 20.6 m²
Kuchyňa 8.68 m²
Kúpeľňa 4.93 m²
Lodžia 8.61 m²
Sklad 2.02 m²
WC 1.41 m²
VÝMERA INTERIÉRU 61.16 m²
VÝMERA EXTERIÉRU 8.61 m²
PIVNIČNÁ KOBKA 2.02 m²
CELKOVÁ VÝMERA 71.38 m²

Benefity

Chodba

  • šatníková skriňa s hĺbkou 60 cm

Spálňa

  • manželská posteľ 200 cm x 200 cm
  • priamy vstup do lodžie
  • šatníková skriňa s hĺbkou 60 cm
  • veľkoformátové okno
  • viacúčelový stolík

Obývacia izba

  • priamy vstup do lodžie

Kuchyňa

  • veľkoformátové okno

Kúpeľňa

  • bez WC
  • práčkový ventil
  • sprchovací kút

Lodžia

  • jedálenské stolovanie
  • orientovaná na 2 svetové strany

Sklad

  • práčkový ventil
  • šatníková skriňa

WC

  • predpríprava na bidet
  • samostatná miestnosť
  • umývadlo

2 izbový byt typu A

zazmluvnený

Podlažie 2

Orientácia JZ

Kód bytu 5.1B_B_01

Výmera interiéru: 61,16 m²

Výmera exteriéru: 8,61 m²

Pivničná kobka: 2,02 m²

Celková výmera: 71,38 m²

Cena s DPH: Na vyžiadanie

Mám záujem o byt Ako postupovať pri kúpe?

Voliteľné
doplnky k bytu

Garážové státie

11GS

zicher-parkovanie orezané na web z galtonu

13.75 m²

25 000 €

arrow-topright
Parkovacie miesto

24PM

zicher-parkovanie orezané na web z galtonu

12.5 m²

12 500 €

arrow-topright
Garážové státie

12GS

zicher-parkovanie orezané na web z galtonu

13.75 m²

25 000 €

arrow-topright
Parkovacie miesto

18PM

zicher-parkovanie orezané na web z galtonu

12.5 m²

12 500 €

arrow-topright
Parkovacie miesto

28PM

zicher-parkovanie orezané na web z galtonu

12.5 m²

13 000 €

arrow-topright

Harmonogram

Stabilný plán výstavby,
viac istoty vo vašom živote

3Q/2026

Odovzdávanie bytov

2Q/2026

Kolaudácia

1Q/2026

Koniec výstavby

3Q/2024

Spustenie predaja

2Q/2024

Začiatok výstavby

kobka6-768x9999

Úložné sklady – komfort pre bývanie aj mimo bytu

Pozorne počúvame nároky na život, ktoré už nie sú len o obytných miestnostiach.

Dnešné bývanie si vyžaduje praktické úložné priestory. Sezónne veci, bicykle, kočíky či športová výbava – všetko, čo nechcete mať v byte, ale chcete mať pod kontrolou.

V bytovom dome ZICHER sme vytvorili suché, bezpečné a dostupné úložné priestory od 4,51 m² do 10,13 m². Ak vám kobka nestačí, rezervujte si svoj priestor už dnes!

Preskúmať ponuku
arrow-topright